Modern Living. Wide Open Views.
Choose your path: build from the ground up, or move in sooner.
Little Ranches at Southern Cross offers a limited release of just 5 homesites – 3 ready to build, 2 already under construction with finish selections still available.
1.5 ACRE LOTS AVAILABLE
ALREADY UNDERWAY
YOU CAN BUILD YOUR WAY
Not Every Buyer Wants the Same Thing—And Here, You Don’t Have To
Some buyers want to start from scratch and design every detail. Others want a head start—with the chance to personalize without waiting from the ground up.
With Little Ranches at Southern Cross, you can choose either.
Secure one of the 3 available lots and build your vision from the ground up…
or step into one of the 2 homes already under construction and still make key finish selections while time allows.
Move Sooner, But Still Make It Yours.
The two homes currently under construction offer the best of both worlds: a faster timeline and the ability to choose finishes—if you act soon.
As construction progresses, those choices disappear.
- Faster move-in timeline
- Select finishes (for a limited time)
- Professionally designed layouts
- High-quality construction
Start Fresh. Build Exactly What You Want.
With three lots available, you have the rare opportunity to create a home that fits your lifestyle from day one.
No compromises. No settling. Just a clean slate.
- Choose your floor plan
- Select your finishes from the start
- Maximize your space and layout
- Build with intention
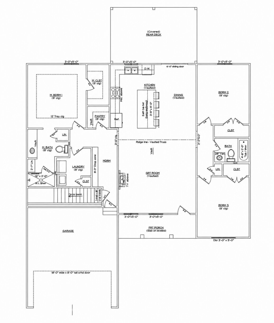
THE WHITE OAK
3 bed, 2 bath, 2 car garage
Heated & Cooled Living Space: +/- 1,610 SF
Unfinished Basement (excluding safe room): +/- 1,505 SF
Basement Safe Room: +/- 69 SF
Garage: +/- 470 SF
Front Porch: +/- 82 SF
Rear Deck: +/- 224 SF
All square footage is approximate and measured from the exterior of stud framing. Buyer to verify.
THE POPLAR
3 bed, 2 bath, 2 car garage, 1.4 acre lot.
Heated & Cooled Living Space: +/- 1,656 SF
Basement Space (if applicable): +/- 1,105 SF
Garage: +/- 562 SF
Front Porch: +/- 185 SF
Rear Deck: +/- 144 SF
All square footage is approximate and measured from the exterior of stud framing. Buyer to verify.
Space, Simplicity, and a Place to Call Home
1.5 acres means: room to breathe. Space for a garden or a shop. Everything you need to escape the world while still being close enough for work, shopping, and entertainment .
MILES TO FORT KNOX
MILES TO BRANDENBURG
MILES TO ELIZABETHTOWN
THE WHITE OAK
This 3-bedroom, 2-bath home offers approximately 1,656 square feet of heated and cooled living space, thoughtfully designed for comfort and everyday living. Set in a peaceful, country setting, it’s the kind of place where things slow down just enough to enjoy the space around you. An additional 1,105 square feet of basement space (if applicable) provides flexibility for future expansion, storage, or creating something that fits your needs.
The home also includes a spacious 562-square-foot garage, a welcoming 185-square-foot front porch, and a 144-square-foot rear deck—perfect for morning coffee, quiet evenings, and taking in the surrounding landscape.
Serviced by Hardin County Water District #1, the property offers the best of both worlds: a quiet, rural feel with convenient access to Meade, Hardin, and Breckenridge County schools, and an easy commute to Fort Knox, Elizabethtown, Brandenburg, and Louisville.
All square footage is approximate and measured from the exterior of stud framing. Buyer to verify.
*All images and renderings are for illustrative purposes only and may not reflect the final construction. Features, finishes, materials, and dimensions may vary.
THE POPLAR
Set near Historic Big Spring in Vine Grove, KY, this 3-bedroom, 2-bath home sits on approximately 1.4 acres and offers a quieter pace of living without giving up everyday convenience. It’s a setting that feels tucked away, with just enough space to spread out and make it your own.
Inside, the home features approximately 1,610 square feet of heated and cooled living space, along with an unfinished basement totaling 1,505 square feet (excluding the safe room)—giving you the freedom to expand, create, or simply keep things open for storage and flexibility. A dedicated 69-square-foot safe room adds an added sense of security.
Additional features include a 470-square-foot garage, an 82-square-foot front porch, and a 224-square-foot rear deck—ideal for stepping outside and enjoying the natural surroundings.
Serviced by Hardin County Water District #1, the property is conveniently located with access to Meade, Hardin, and Breckenridge County schools, and offers an easy drive to Fort Knox, Elizabethtown, Brandenburg, and Louisville.
All square footage is approximate and measured from the exterior of stud framing. Buyer to verify.
*All images and renderings are for illustrative purposes only and may not reflect the final construction. Features, finishes, materials, and dimensions may vary.